最近浏览产品
承口铜内丝异径
直径75mm 承插异径直通
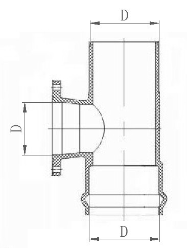
一承一插一平正三通

一承一插一平正三通价格列表

直径110mm-1.0Mpa,¥282.00 元/个
直径160mm-1.0Mpa,¥666.00 元/个
直径200mm-1.0Mpa,¥1196.00 元/个
直径250mm-1.0Mpa,¥1060.00 元/个
咨询电话:18910559187,产品购买询价:向灌溉商城咨询产品价格
产品详情

名称:一承一插一平正三通

承压等级:【1.0MPa

颜色:灰色

产品规格图解:

其中 D 表示管件承口、插口、法兰口直径为 110mm1.0MPa=10公斤。

PVC-U管件是一种硬质聚氯乙烯材料,它是由聚氯乙烯树脂与稳定剂、润滑剂等以一定的比例混合注塑成型的。产品外表光滑,符合GB/T10002.1-2006的标准。

产品包装介绍:

一承一插一平正三通的特点及用途:

1. 产品经过热塑处理,最高可在流体温度60C°的环境下正常工作。

2.主要用于胶圈式管材主、干管之间的连接。

3.管件的连接需在结合面放入法兰垫片,使用螺栓拧紧,R胀口放入橡胶密封圈。

4.管件长时间使用内壁不结垢、不阻塞,更卫生。

※若购买此种管件用于管材连接,需同时购买相配套的法兰垫片、橡胶密封圈、螺栓,具体安装方式及注意事项详见《PVC-U柔性管件连接方法 》。 

首页 - 公司介绍 - 帮助 - 联系我们   京ICP备12045252号
地址:北京市昌平区兴寿镇西新城村上西路东侧-兴寿老年公寓对面(北京鑫城缘果品合作社东北角)
服务时间:9:00—18:00 联系电话:400-807-1226